هاتف: +963-31-2220008 جوال: +963-999-824193 سوريا - حمص
JWDBeam
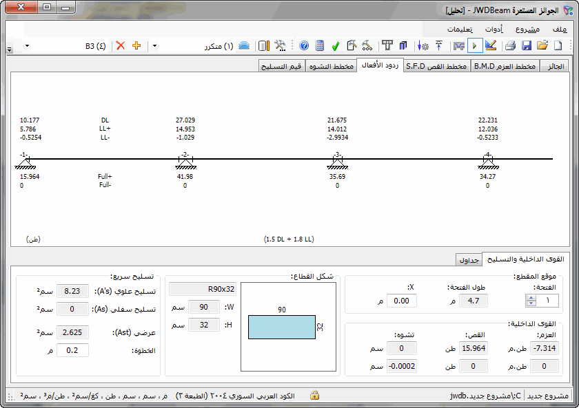
هذه الصور خاصة بنوافذ الإصدار 6.0.1 الكامل من برنامج الجوائز المستمرة JWDBeam
انقر على الصور للتكبير
هاتف: +963-31-2220008
جوال: +963-999-824193
سوريا - حمص